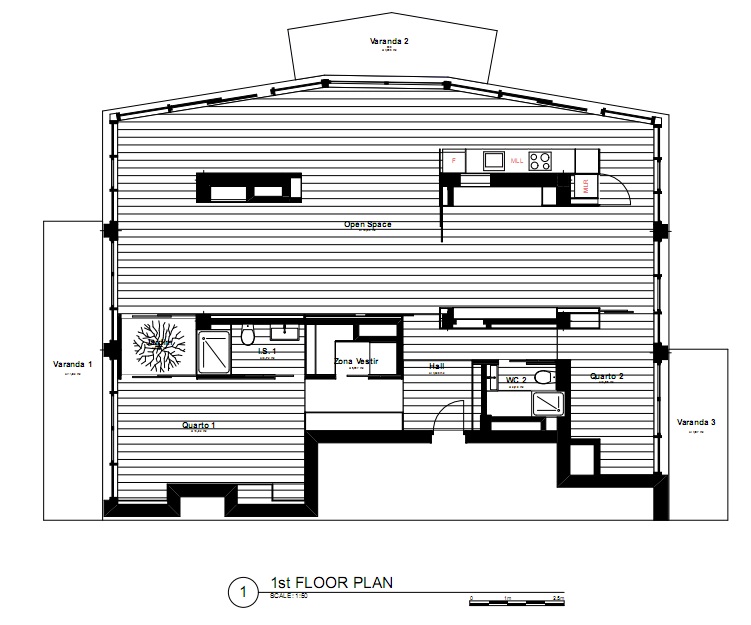
Apartamento na ALAMEDA